Refurbished and modern restaurant for lease with license C3 in Sant Gervasi with terrace

  • 165.000€
  • 2.230€/month

Overview

Property ID: HR103
  • Commercial Premises
  • Type of property
  • 1
  • Bath
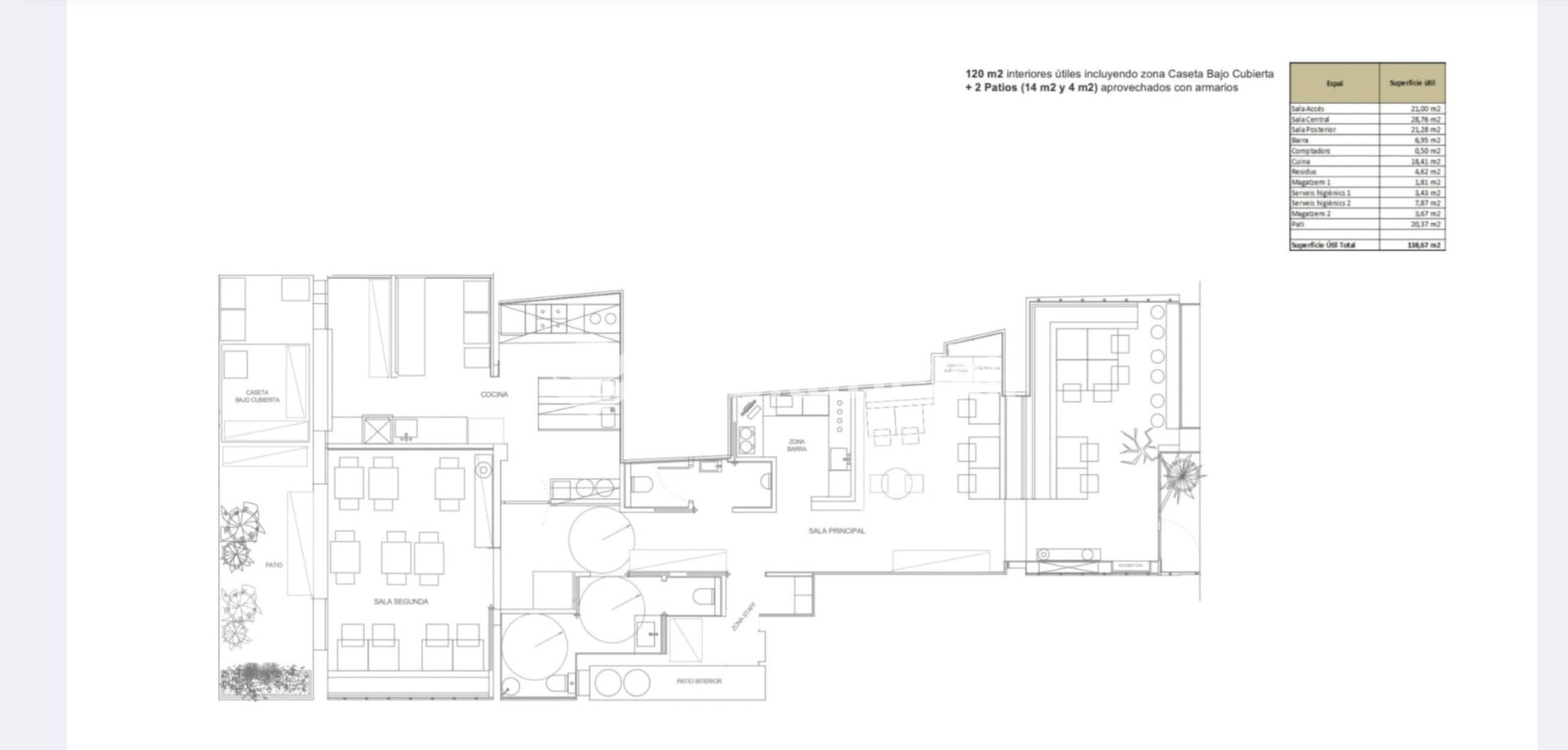
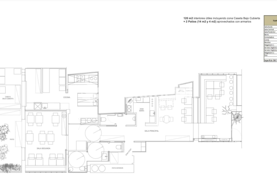
  • 138 m²
  • Area size

Description

HabitaRetail presents this restaurant with a C3 catering license, strategically located in the upper area of Sant Gervasi, Barcelona.
The premises is in impeccable condition and has a capacity for 65 diners in an indoor dining room, complemented by an outdoor terrace for 16 people.
Located in a consolidated area with a wide and varied gastronomic offer, this establishment offers a high potential for attracting customers and developing a successful restaurant business.
This is an excellent opportunity to undertake a new project in one of the most sought-after areas of the city. The space stands out for its functional distribution, which favors a comfortable and efficient operation. It is fully equipped, both in the dining room and in the kitchen, which allows to start the activity immediately.
The establishment has a bathroom adapted for people with reduced mobility, storage area, changing rooms for staff and a backyard for private use, which provides natural light to the interior of the premises.
All facilities have been recently renovated and comply with current regulations.
Visits are made only by appointment coordinated with the property.

At HabitaRetail we are specialists in the retail sector, with a solid track record in the expansion of leading national and international brands. We advise operators in the search for strategic locations, working closely with leading national and international brands and adapting to their growth plans.

We manage the commercialization of all types of commercial premises, with a team that includes specialists in the hospitality sector, prepared to accompany transfers and operations with the utmost professionalism.

Our approach is based on a close, professional service aligned with the objectives of each client, guaranteeing safe, transparent and efficient operations.

At HabitaRetail we continue with our mission to connect companies and people with spaces.

Details

Updated on December 23, 2025 at 7:55 pm
  • Property ID HR103
  • Price 165.000€
  • Property size 138 m²
  • Bath 1
  • Type of property Commercial Premises
  • State of the property Transfer

similar listings

Compare listings

Compare